Кантователь КМ-1

Кантователь КМ-1

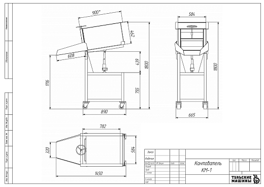
Габаритные размеры: Длина х Ширина х Высота, мм
665х1450х1800
Все характеристики
Назначение: подача сырья для дальнейшей обработки.
Пуско-наладка на вашем объекте и обучение вашего персонала
При необходимости проводим испытания с давальческим сырьем
Послепродажный сервис и плановые поставки запчастей и расходников
Цена по запросу
узнать цену
Гарантия: от 12 месяцев
Доставка: по всей России и СНГ
Сроки изготовления: от 40 рабочих дней
Подобрать решение
Андрей Федоров
Инженер-консультант
+7 (950) 921-62-55

ТЕХНИЧЕСКИЕ ХАРАКТЕРИСТИКИ — Кантователь КМ-1

Габаритные размеры: Длина х Ширина х Высота, мм:
665х1450х1800
Изготовление по вашему ТЗ
Отправить ТЗ
Реверс-инжиниринг
Обсудить задачу

ОПИСАНИЕ — Кантователь КМ-1

Кантователь – агрегат, позволяющий производить перемещение, перекладку, подъем габаритных грузов или при наличии тары с винтовой задвижкой осуществлять дозированную подачу сыпучих материалов.

Кантователи используются для комплектации технологических линий или входят в состав агрегатов и узлов.

Область применения кантователей

Кантователи применяются в следующих областях промышленности:

  • Химическое производство
  • Производство строительных материалов
  • Изготовление комбикормов.

Устройство кантователя КМ-1

Кантователь включает в себя: раму, установленную на прорезиненных колесиках, для удобного перемещения кантователя по производственной площадке; откид с направляющим лотком, обеспечивающий разгрузку кантователя; гидравлический домкрат, предназначенный для подъема откида и (в случае комплектации) разгрузочную тару с винтовой заслонкой для дозировки подачи материала.

ЧЕРТЕЖ — Кантователь КМ-1


Обсудить задачу
Обсудить задачу
Отправьте заявку — с вами свяжется инженер:
  • Обсудить технические вопросы
  • Подготовить коммерческое предложение
  • При необходимости договориться о встрече
  • Организовать экскурсию на производство